• Refresh
  • Zoom In
  • Zoom Out

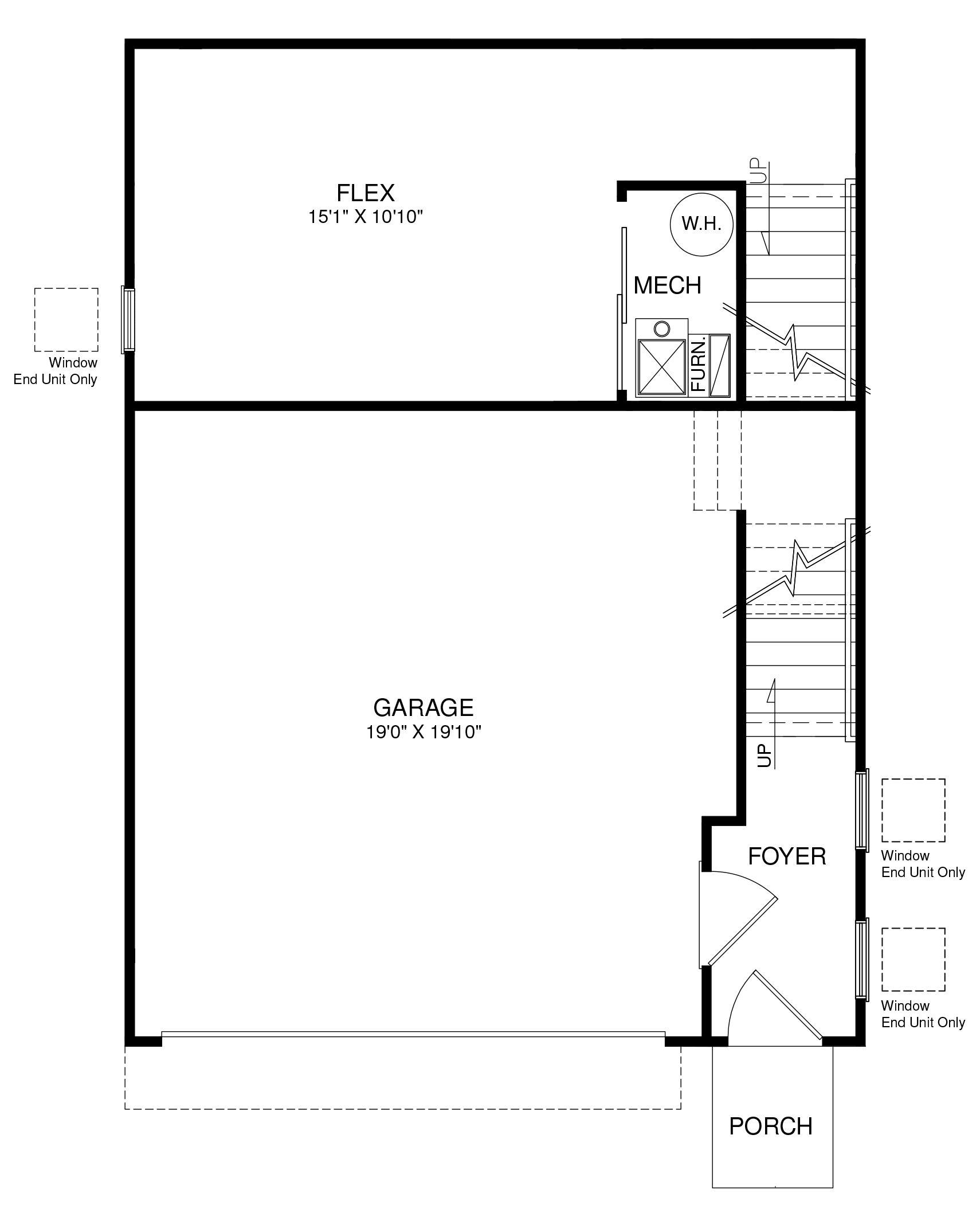
Lower Level

Main Level

Upper Level